De Boer & Partners | Woning | Statig her... | 7179921

Statig herenhuis met 6 slks, 2 bdks, dubbele garage

€ 725.000
574 m²
505 m²

6
2
Terras
Tuin
Graatakker 1, 2300 Turnhout, België

Statig herenhuis nabij de Grote Markt met een majestueuze uitstraling en tal van bewaarde 19de-eeuwse elementen, zoals een marmeren dambordvloer, een houten Engelse trap, sierlijke schouwen, plankenvloeren en een balkenzoldering. De woning biedt royale woon- en werkvertrekken, een gezellige stadstuin, een wijnkelder en een dubbele garage. Er zijn momenteel zes slaapkamers (met mogelijkheid tot zeven à acht), twee badkamers en een ingerichte zolderruimte met dakterras. Het eigendom bezit een hoge historische en architecturale waarde en vormt een beeldbepalend element in het straatbeeld.

Gelijkvloerse verdieping:
U wordt verwelkomd in een statige inkomhal met marmeren tegelvloer in dambordpatroon en een elegante houten Engelse trap. Zowel aan de linker- als aan de rechterzijde geeft de hal toegang tot een salon: vandaag ingericht als zithoek en muziekkamer, maar evengoed geschikt als ontvangst- of bureauruimtes.

Achteraan bevindt zich een later aangebouwd gedeelte met een riante woonruimte die dankzij een groot schuifraam een prachtig zicht biedt op de tuin. Dit schuifraam kan volledig geopend worden, waardoor binnen en buiten naadloos in elkaar overvloeien. De aangrenzende eetkeuken is uitgerust met alle nodige toestellen en ruime opbergmogelijkheden. De keuken is bovendien voorzien van vloerverwarming.

Vanuit de aangename wintertuin is er doorgang naar de dubbele garage, terwijl er tegelijk een fraai zicht is op de gezellige stadstuin met terras en tuinhuis.

Eerste verdieping: Op de verdieping bevinden zich 6 slaapkamers. De masterbedroom beschikt over een eigen volledig ingerichte badkamer met douche, toilet, ligbad, dubbele wastafel en aansluitingen voor wasapparatuur. Vanuit deze kamer heeft u toegang tot een royaal terras van maar liefst 40 m². Daarnaast zijn er nog 5 bijkomende slaapkamers, waarvan vier met eigen wastafel, bureel en ingemaakte kasten. Tot slot is er nog een tweede badkamer met douche, wastafel en toilet.

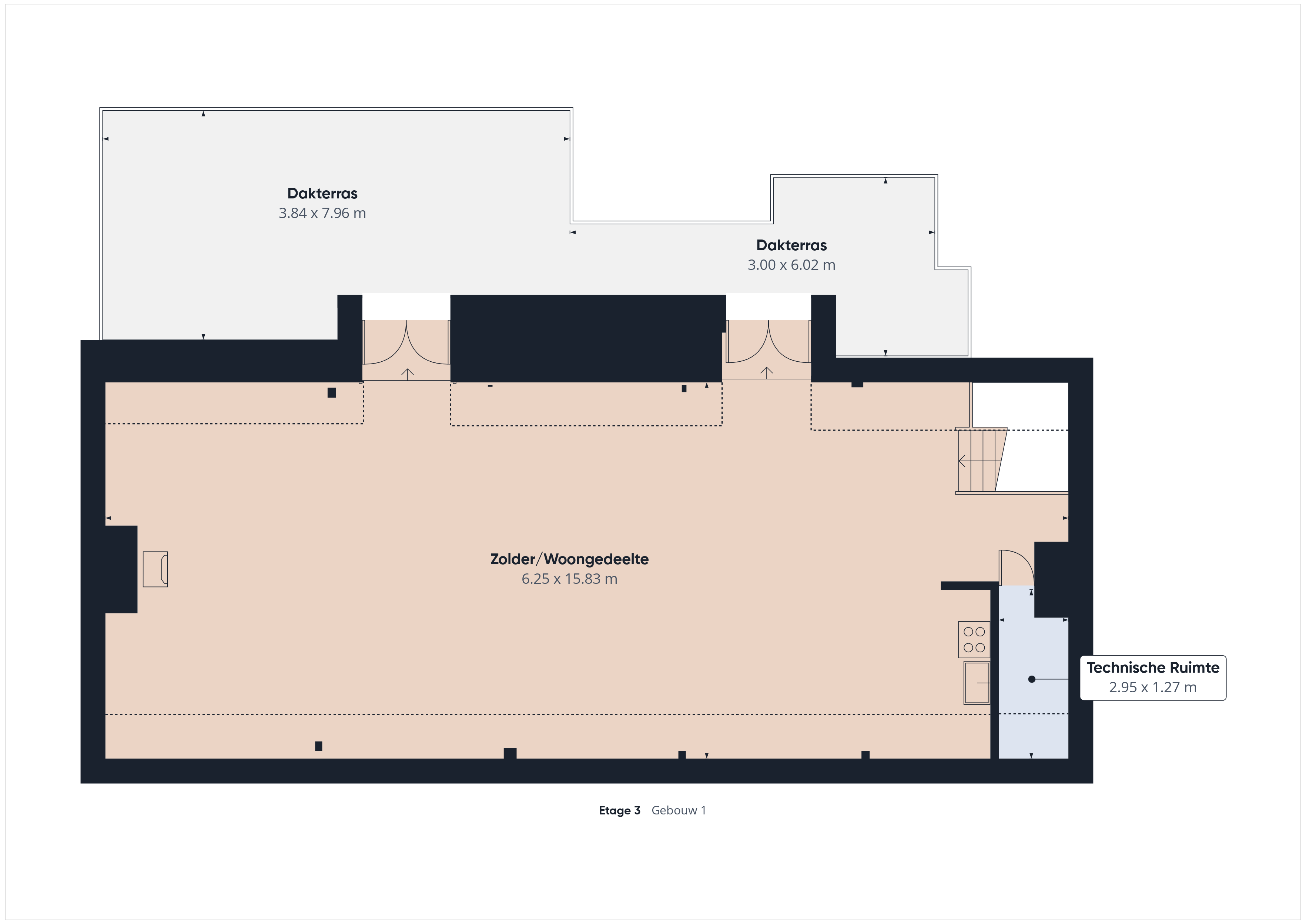
Tweede verdieping: Via een vaste trap bereikt u de volledig ingerichte zolderverdieping met aansluitend dakterras. U treft hier een royale loftkamer van ca. 96 m², bijzonder sfeervol door de prachtige houten balkenzoldering en de houtkachel. Deze verdieping is bovendien uitgerust met een eigen keuken en ingemaakte kasten, waardoor ze zich uitstekend leent als extra leefruimte, hobbykamer of privégedeelte.

Buitengebeuren:
De woning beschikt over een schitterende groene stadstuin met vijvertje en hoge volwassen bomen, die een oase van rust creëren midden in de stad. In de tuin bevindt zich een aangelegd terras en een bijgebouw/werkhuis met bovenverdieping, dat zich uitstekend leent als speelzolder of polyvalente ruimte. De tuin heeft een ideale zuidoostelijke oriëntatie.

Bijzonderheden:

- Zeer gunstige EPC-score: 187 Kwh/m²/j (B-label)
- Elektrische installatie: conform
- Vastgesteld als bouwkundig erfgoed
- Wijnkelder met tongewelf
- Dubbele garage, te bereiken vanuit de Mermansstraat
- Centrale verwarming op aardgas, d.m.v. radiatoren en convectoren
- Tal van mogelijkheden: praktijk/kantoor aan huis, ruime gezinswoning, eventuele opsplitsing,..

Bekijk deze woning via onze virtual tour: https://tour.giraffe360.com/49f4c94b80554020ae4eb69396872259/

  • Referentie nr. 6900 TCV
  • Bouwjaar 1875
  • Beschikbaarheid in onderling overleg
  • Kadastraal inkomen€ 902
  • Garages Ja
  • Elektriciteitskeuring beschikbaar ja, conform
  • Verwarming individueel gas cv
  • EPC 187 kWh/m²
  • EPC label B B
  • EPC code 20250321-0003559563-RES-1
  • Dubbel glas Ja
  • Slaapkamers 6
  • Badkamers 2
  • Terras Ja
  • Tuin Ja
  • Stedenbouwkundige bestemming woongebied
  • Stedenbouwkundige vergunning Vergunning uitgereikt
  • Dagvaarding en herstelvordering Geen rechterlijke herstelmaatregel of bestuurlijke maatregel opgelegd
  • Voorkooprecht Geen voorkooprecht ruimtelijke ordening aanwezig
  • Verkavelingsvergunning Geen verkavelingsvergunning
  • Bestuursmaatregelen in maatregelenregister Nee
  • G-score C
  • P-score C
Statig herenhuis met 6 slks, 2 bdks, dubbele garage
Bekijk alle foto's
(30)


Wonen in
Turnhout

Turnhout, dat is de provinciehoofdstad van de Kempen. Dwaal door het historische centrum en vergaap je aan het 14de-eeuws Begijnhof, erkend als werelderfgoed. Ook aan winkels geen gebrek en tal van restaurants, waaronder ons het allereerste sterrenrestaurant “HERT”, en gezellige bars wachten op u. Tot rust komen doet u in het Stadspark of in één natuurgebieden, zoals het gekende Zwart Water met zijn uitgestrekte vennen.

Op zoek naar een makelaar in Turnhout? Wij helpen u graag! Wilt u een woning kopen of verkopen in Turnhout? Wij bieden u deskundig advies en begeleiden u op een persoonlijke manier door het volledige proces. Dankzij onze uitgebreide kennis van de regio zorgen we voor een vlotte en succesvolle aan- of verkoop van uw eigendom. Wij zijn gespecialiseerd in de verkoop van huizen, appartementen en bouwgronden in Turnhout. Bent u benieuwd naar de waarde van uw woning? Vraag vandaag nog een gratis en vrijblijvende schatting aan en ontdek de marktwaarde van uw eigendom.

Kaart Streetview

Contacteer ons

De Boer & Partners - Kantoor Turnhout bvba

Wij schatten de waarde
van uw eigendom

Heeft u plannen om nu, of in de nabije toekomst uw eigendom te verkopen?
Vraag dan nu een gratis en vrijblijvende schatting aan.