De Boer & Partners | Woning | Een tijdlo... | 7345611

Een tijdloze statige villa (architect Leo Beek) in perfecte staat van onderhoud op 5.040 m² grond!

€ 1.650.000
5.040 m²
455 m²

5
2
19 m²
5.040 m²
Struikenlaan 13, 2930 Brasschaat, België

Een tijdloze statige villa (architect Leo Beek) in perfecte staat van onderhoud op 5.040 m² grond!

De gelijkvloerse verdieping:
- Een inkomhal (ca. 19 m²) met ingemaakte vestiaire en gastentoilet met separate handenwasser
- Middels dubbele stalen deur naar woonkamer (ca. 58 m²) op parket met Metalfire houthaard en ingemaakte TV-wand, en zij-ingang naar (overdekt) terras
- Een royale leefkeuken (ca. 38 m²) met inbouwtoestellen waaronder o.a. Gaggenau oven, warmhoudlade, inductie, koelkast en vrieslade, alsook een eiland voorzien van dubbele gootsteen, Miele vaatwasser en ingemaakte kasten. Groot schuifraam naar de tuin
- Een bureau (ca. 18 m²) met ingemaakte kasten en dubbel openslaande deuren naar terras
- Een TV-kamer (ca. 55 m²) met ingemaakte kasten en eveneens dubbel openslaande deuren en schuifraam naar terras
- Een dubbel inpandige garage (ca. 59 m²) met elektrische sectionaalpoort, spoelbak en achterliggende wasplaats (ca. 8m²) met ingemaakte kasten
- Een kelder, opgesplitst in wijnkelder en technische ruimte (en kruipruimte - behalve onder de garage)

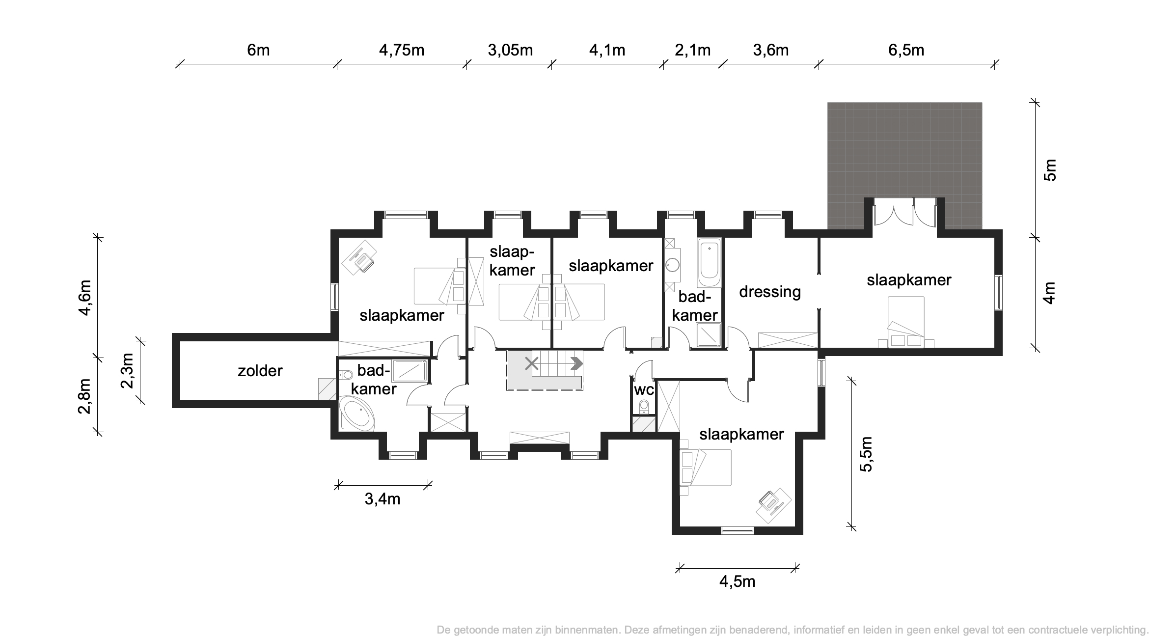
De eerste verdieping:
- Een nachthal (ca. 19 m²) met nachttoilet en ingemaakte linnenkast
- Een eerste slaapkamer (ca. 18 m²) op parket
- Een badkamer (ca. 10 m²) op beige natuursteen, met lavabo, ligbad, douche en toilet
- Een hoofdslaapkamer (ca. 45 m²) met ingemaakte dressing en ruim terras (ca. 19 m²) op bancarai en zicht op de tuin
- Een derde, vierde en vijfde slaapkamer (ca. 29, 14 en 21 m²) op vast tapijt met ingemaakte kasten
- Een tweede badkamer (ca. 10 m²) met ligbad/jacuzzi, douche, lavabo en toilet
- Middels zolderluik (vlizotrap) naar zolderberging - men kan een vaste trap plaatsen en zo de zolderverdieping toegankelijk maken als extra kamer/hobbyruimte/bureau.

De tuin:
- Een prachtige omheinde, perfect onderhouden tuin met meerdere terrassen en volwassen bomenbestand
- Zon rondom rond (perfecte ZW-oriëntatie) met unieke breedte : 2 naast elkaar gelegen bouwpercelen
- Overdekt terras met houthaard/barbecue
- Een tuinberging en een fietsenberging
- Een automatische toegangspoort en oprit voor ca. 3 wagens
- Ruime terrassen van ca. 170m² waarvan deels een overdekt terras

Algemeen:
- Verwarming op gas (sinds 2022) d.m.v. convectoren
- Grondige renovatie op vlak van isolatie, bouwtechnisch en esthetisch
- Gebruik gemaakt van zeer duurzame kwalitatieve en tijdloze materialen
- Alle comfort en technische extra's: Gaggenau toestellen, videofonie, laadpaal, warmtepomp, domotica, ingebouwde muziekboxen, alarm, camerabewaking, 19 zonnepanelen (8,3 kwp),...
- Keuken, bibliotheek, TV-kamer en twee slaapkamers: airco en verwarming met warmtepomp
- Elektriciteit grondig vernieuwd (2022) = conforme elektriciteitskeuring!
- Gunstig EPC-label = B
- Asbestveilig attest
- Binnenhuisarchitect (renovatie benedenverdieping)= Peter Ivens
- Tuinarchitect= Piet Gysel

Zeer residentiële villawijk en uiterst rustig gelegen!

  • Referentie nr. 83315 BS
  • Straatbreedte 72 m
  • Bouwjaar 1975
  • Beschikbaarheid vanaf akte
  • Kadastraal inkomen€ 4.364
  • Garages Ja
  • Garage(s) 2
  • Parkings (binnen) Ja
  • Parkings (buiten) Ja
  • Elektriciteitskeuring beschikbaar ja, conform
  • Verwarming warmtepomp
  • EPC 196 kWh/m²
  • EPC label B B
  • Potentieel EPC A A Volgens het EPC kan deze woning naar een A-label gerenoveerd worden.
  • EPC code 3347514
  • Dubbel glas Ja
  • Slaapkamers 5
  • Badkamers 2
  • Terras Ja
  • Kelder Ja
  • Zolder Ja
  • Tuin Ja
  • Wasplaats Ja
  • Stedenbouwkundige info In aanvraag
  • Stedenbouwkundige bestemming woonpark
  • Stedenbouwkundige vergunning Vergunning uitgereikt
  • Dagvaarding en herstelvordering Geen rechterlijke herstelmaatregel of bestuurlijke maatregel opgelegd
  • Voorkooprecht Geen voorkooprecht ruimtelijke ordening aanwezig
  • Verkavelingsvergunning Geen verkavelingsvergunning
  • WORG Nee
  • Bestuursmaatregelen in maatregelenregister Nee
  • G-score A
  • P-score B
Een tijdloze statige villa (architect Leo Beek) in perfecte staat van onderhoud op 5.040 m² grond!
Bekijk alle foto's
(37)


Wonen in
Brasschaat

Wonen in het levendige en groene Brasschaat is een droom. Randje Antwerpen en vlot bereikbaar, leef je in de natuur terwijl een bruisend stadscentrum garant staat voor tal van leuke adresjes en winkelplezier. Brasschaat leeft, dat merk je meteen.

Op zoek naar een makelaar in Brasschaat? Wij staan voor u klaar! Wilt u een woning kopen of verkopen in Brasschaat? Met onze lokale expertise en ervaring in deze groene en rustige regio bieden wij u deskundig advies en begeleiden we u door het volledige proces. Of het nu gaat om de verkoop van een huis, appartement of een exclusief vastgoed, wij zorgen voor een succesvolle transactie in Brasschaat. Wij zijn gespecialiseerd in de verkoop van huizen, villa's en appartementen in Brasschaat. Wilt u de waarde van uw woning weten in deze gewilde regio? Vraag vandaag nog een gratis en vrijblijvende schatting aan en ontdek hoeveel uw eigendom waard is in Brasschaat.

Kaart Streetview

Contacteer ons

De Boer & Partners - Kantoor Brasschaat

Wij schatten de waarde
van uw eigendom

Heeft u plannen om nu, of in de nabije toekomst uw eigendom te verkopen?
Vraag dan nu een gratis en vrijblijvende schatting aan.