De Boer & Partners | Appartement | Duplex in... | 7215307

Duplex in loftstijl (182m²) met zicht op de Grote Markt !

€ 474.000
182 m²

3
2
34 m²
2
Baron Frans du Fourstraat 2/2, 2300 Turnhout, België

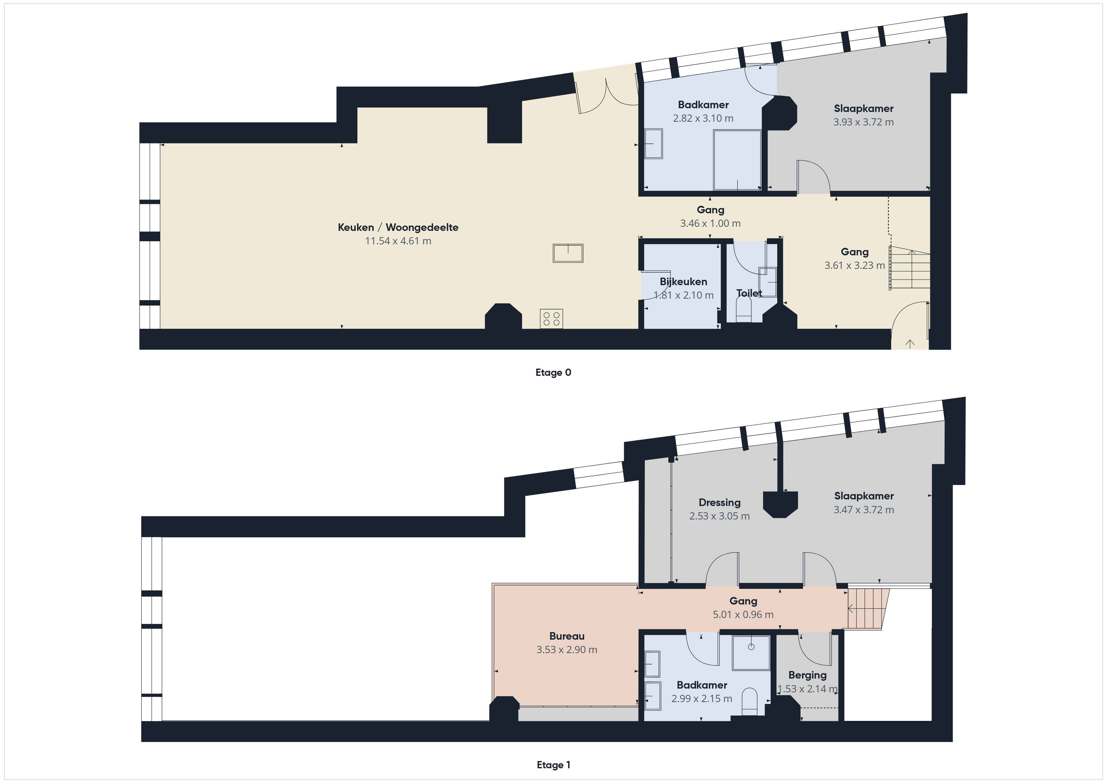
Gelegen in hartje Turnhout in residentie "Nationale Bank": karaktervol en gezellig duplex-appartement in loftstijl van ca. 182 m² met een schitterend zicht op de Grote Markt. Dit unieke appartement bevindt zich op de eerste en tweede verdieping en beschikt over 3 (slaap)kamers en 2 badkamers. De Grote Markt én Turnova bevinden zich om de hoek, waardoor u alle voorzieningen, restaurants en openbaar vervoer op wandelafstand heeft. Bovendien geniet dit appartement van een zeer gunstige EPC-score van 164 kWh/m²/jaar (label B). De vraagprijs is inclusief een ondergrondse autostaanplaats ter waarde van 25.000 EUR.

Indeling: Ruime inkomhal met gastentoilet en houten trap naar de slaapvertrekken op de 2de verdieping. Op de eerste verdieping heeft u een lichte woonkamer met vide over de 2 verdiepingen, een open leefkeuken voorzien van een vaatwasmachine, keramische kookplaat, dampkap, ingebouwde koelkast, combi-oven en dubbele spoelbak in kookeiland. Aansluitend aan de keuken heeft u een ruime berging met aansluitingen voor de wasapparatuur. Heel praktisch is ook de slaapkamer met ensuite badkamer op dezelfde verdieping als de woonkamer. De gehele eerste en tweede verdieping is op massieve eiken parketvloer.

Op de 2de verdieping heeft u een slaapkamer met ensuite dressing, een berging en een bureel dat uitkijkt op de woonkamer en op de Grote Markt. Zowel de dressing als het bureel zijn voorzien van ingemaakte kasten.

Inclusief een ondergrondse autostaanplaats ter waarde van 25.000 EUR.

Bijzonderheden:
- Geluidswerende en thermische isolerende beglazing
- Gunstig EPC: 164 kWh/m² (B-label)
- Elektrische rolluiken in woonkamer
- Centrale verwarming op aardgas
- Lift aanwezig
- Terras van ca. 34m² aan de achterzijde (via de gemeenschappelijke hal te bereiken)
- Gemeenschappelijke fietsenberging
- 400€ / maand voorschot gemeenschappelijke kosten (incl. blokpolis, syndicuskosten én individuele verwarming- en waterverbruik)

Bekijk dit appartement via onze virtual tour: https://tour.giraffe360.com/2291bc4fe0494e16b14d993f5785c318/

  • Referentie nr. 6907 TCV
  • Bouwjaar 1974
  • Beschikbaarheid vanaf akte
  • Kadastraal inkomen€ 2.131
  • Garages Ja
  • Parkings (binnen) Ja
  • Elektriciteitskeuring beschikbaar ja, niet conform
  • Verwarming collectief gas
  • EPC 164 kWh/m²
  • EPC label B B
  • EPC code 20251014-0002594899-RES-3
  • Dubbel glas Ja
  • Slaapkamers 3
  • Badkamers 2
  • Verdieping 1
  • Terras Ja
  • Lift Ja
  • Wasplaats Ja
  • Stedenbouwkundige bestemming woongebied met een cult., hist. en/of esthetische waarde
  • Stedenbouwkundige vergunning Vergunning uitgereikt
  • Dagvaarding en herstelvordering Geen rechterlijke herstelmaatregel of bestuurlijke maatregel opgelegd
  • Voorkooprecht Geen voorkooprecht ruimtelijke ordening aanwezig
  • Verkavelingsvergunning Verkavelingsvergunning
  • Bestuursmaatregelen in maatregelenregister Nee
  • G-score A
  • P-score A
Duplex in loftstijl (182m²) met zicht op de Grote Markt !
Bekijk alle foto's
(22)


Wonen in
Turnhout

Turnhout, dat is de provinciehoofdstad van de Kempen. Dwaal door het historische centrum en vergaap je aan het 14de-eeuws Begijnhof, erkend als werelderfgoed. Ook aan winkels geen gebrek en tal van restaurants, waaronder ons het allereerste sterrenrestaurant “HERT”, en gezellige bars wachten op u. Tot rust komen doet u in het Stadspark of in één natuurgebieden, zoals het gekende Zwart Water met zijn uitgestrekte vennen.

Op zoek naar een makelaar in Turnhout? Wij helpen u graag! Wilt u een woning kopen of verkopen in Turnhout? Wij bieden u deskundig advies en begeleiden u op een persoonlijke manier door het volledige proces. Dankzij onze uitgebreide kennis van de regio zorgen we voor een vlotte en succesvolle aan- of verkoop van uw eigendom. Wij zijn gespecialiseerd in de verkoop van huizen, appartementen en bouwgronden in Turnhout. Bent u benieuwd naar de waarde van uw woning? Vraag vandaag nog een gratis en vrijblijvende schatting aan en ontdek de marktwaarde van uw eigendom.

Kaart Streetview

Contacteer ons

De Boer & Partners - Kantoor Turnhout bvba

Wij schatten de waarde
van uw eigendom

Heeft u plannen om nu, of in de nabije toekomst uw eigendom te verkopen?
Vraag dan nu een gratis en vrijblijvende schatting aan.