De Boer & Partners | Commercieel | Handelsgel... | 7138876

Handelsgelijkvloers met gerenoveerde triplex in het centrum!

€ 450.000
70 m²
175 m²

Terug naar overzicht

Dit pand werd 33 keer bekeken

Stationsstraat 14, 2950 Kapellen, België


Gerenoveerd handelsgelijkvloers met triplex pal in het centrum van Kapellen! Ideaal als investeringseigendom!

Handelsgelijkvloers
Op de gelijkvloerse verdieping
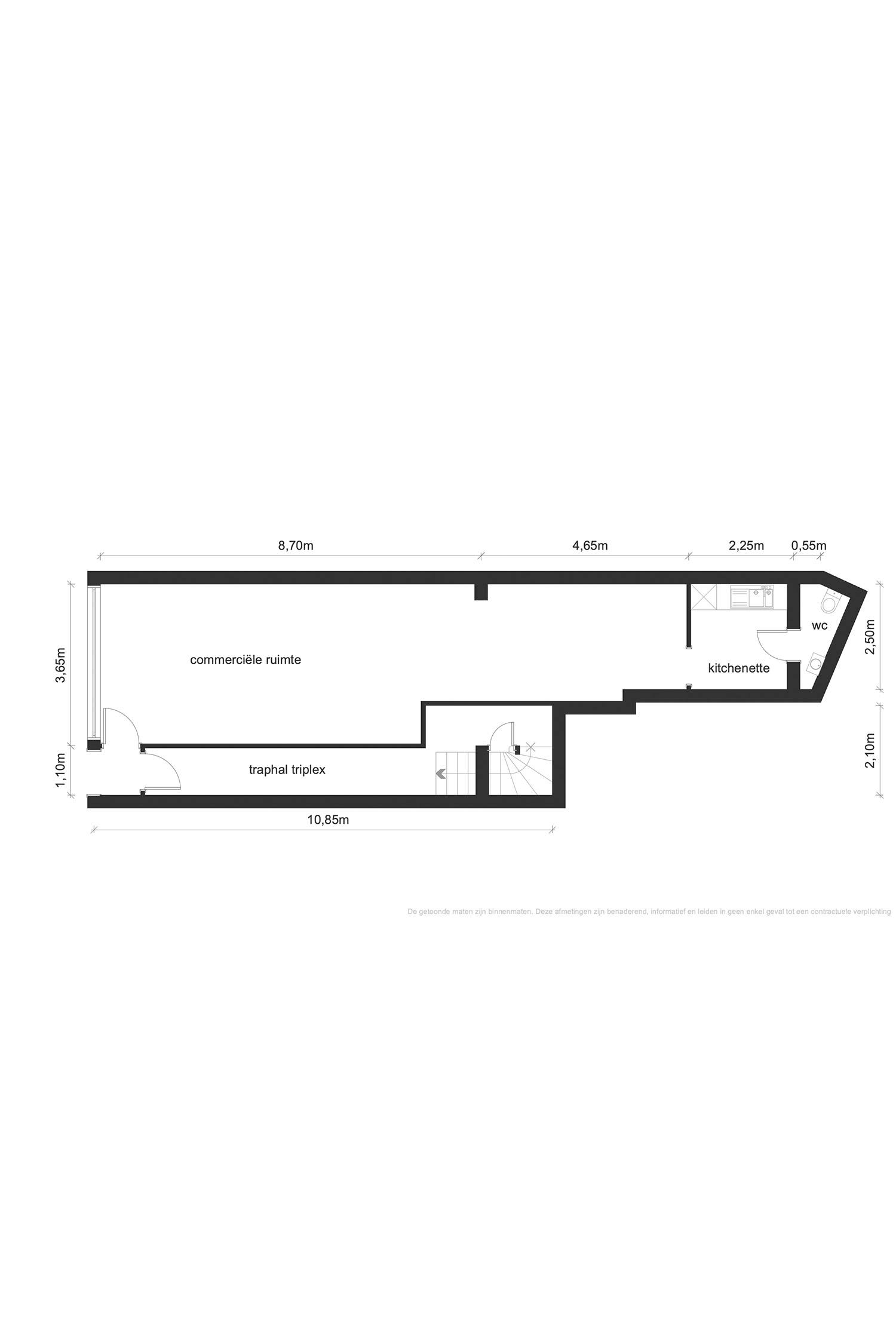
- Een commerciële ruimte op tegelvloer van Ca. 60 m².
- Achteraan uitgerust met een praktische kitchenette.
- Een apart toilet

Triplex:
Op de eerste verdieping
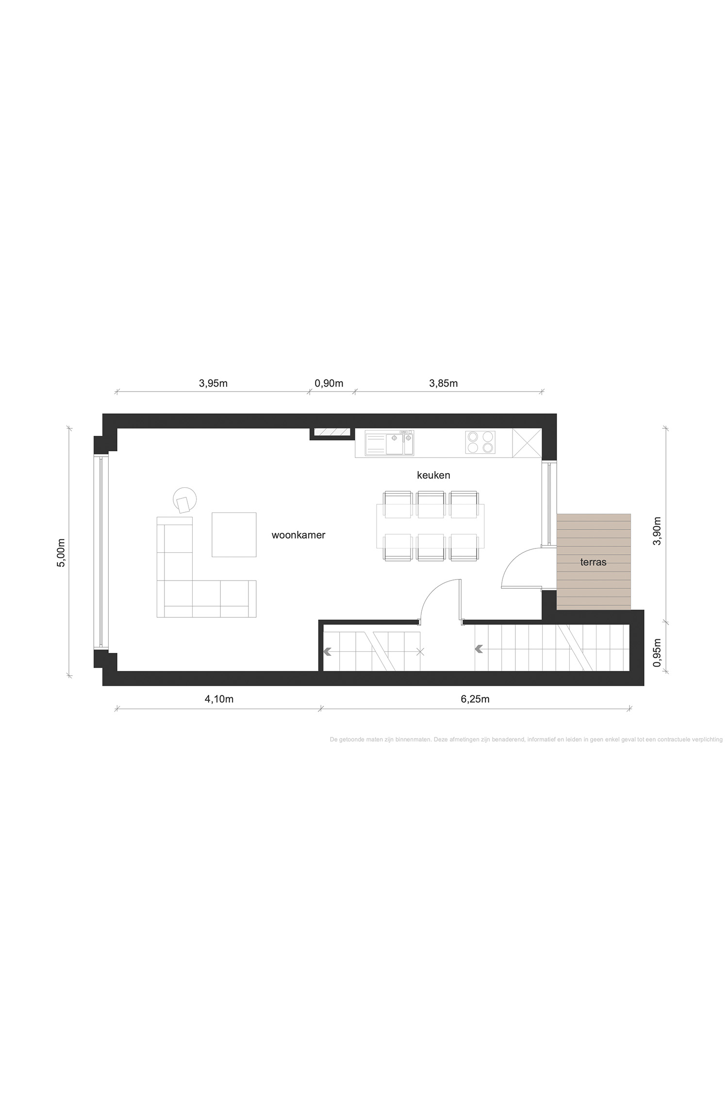
- een ruime leefruimte op parketvloer van Ca. 40 m² waar aansluitingen voor een open keuken reeds klaarliggen. Vanuit leefruimte toegang tot het balkon/terras.

Op de tweede verdieping
- Een ruime nachthal met toegang tot 2 slaapkamers (Ca. 12 m² en 8 m²)
- Een badkamer welke reeds grotendeels werd afgewerkt, betegeld en voorzien van douche en dubbele wastafel
- Een apart toilet

Op de derde verdieping
- Een ruime en afgewerkte zolderkamer van Ca. 11 m²

Ligging van het gebouw

Dit uitermate centraal gelegen pand achter de hoek van winkelcentrum Promenade ligt op een absolute toplocatie tussen station en centrum.

Staat van het gebouw:
Het gebouw werd grotendeels gerenoveerd. Alle aansluitingen liggen klaar, enkel plaatsing van keuken en verdere afwerking nog te verwezenlijken. Vloeren van de triplex zijn ook volledig vervangen.

Een vergunning werd reeds afgeleverd voor de splitsing van het gebouw in een wooneenheid (triplex) en een apart handelsgelijkvloers! De inkomhal kan makkelijk gesplitst worden om de aparte toegang naar de triplex te realiseren!.

Energetisch werd de woning doorheen de jaren ook sterk verbeterd: dakisolatie 18cm, vensters grotendeels HR- beglazing en verwarming met condensatieketel, resulterende in een goed EPC label.

  • Referentie nr. 67674 TB
  • Beschikbaarheid vanaf akte
  • Kadastraal inkomen€ 1.222
  • Elektriciteitskeuring beschikbaar nee
  • Verwarming individueel
  • EPC 179 kWh/m²
  • EPC label B B
  • EPC code In aanvraag
  • Dubbel glas Ja
  • Kelder Ja
  • Stedenbouwkundige bestemming woongebied
  • Stedenbouwkundige vergunning Vergunning uitgereikt
  • Dagvaarding en herstelvordering Geen rechterlijke herstelmaatregel of bestuurlijke maatregel opgelegd
  • Voorkooprecht Geen voorkooprecht ruimtelijke ordening aanwezig
  • Verkavelingsvergunning Geen verkavelingsvergunning
  • WORG Nee
  • G-score A
  • P-score A
Handelsgelijkvloers met gerenoveerde triplex in het centrum!
Bekijk alle foto's
(17)


Wonen in
Kapellen

Wonen in Kapellen betekent thuiskomen in een groene, residentiële gemeente waar rust en klasse samenkomen. Deze grensgemeente in de Antwerpse Noorderkempen is geliefd bij gezinnen en levensgenieters die graag het beste van twee werelden combineren: een rustige thuisbasis met de stad altijd binnen handbereik.

Op zoek naar een makelaar in Kapellen? Wij helpen u graag! Wilt u een woning kopen of verkopen in Kapellen? Met onze uitgebreide kennis van de lokale vastgoedmarkt en onze ervaring in deze aantrekkelijke regio bieden wij u deskundig advies en begeleiden wij u door elke stap van het proces. Of het nu gaat om de verkoop van een huis, appartement of bouwgrond, wij zorgen voor een succesvolle en zorgeloze transactie in Kapellen. Wij zijn gespecialiseerd in de verkoop van huizen, appartementen en vastgoed in Kapellen. Bent u benieuwd naar de waarde van uw woning in deze rustige en goed verbonden regio? Vraag vandaag nog een gratis en vrijblijvende schatting aan en ontdek de marktwaarde van uw eigendom.

Kaart Streetview

Contacteer ons

De Boer & Partners - Kantoor Kalmthout

Wij schatten de waarde
van uw eigendom

Heeft u plannen om nu, of in de nabije toekomst uw eigendom te verkopen?
Vraag dan nu een gratis en vrijblijvende schatting aan.