De Boer & Partners | Woning | Eigentijds... | 7109928

Eigentijdse villa op ca. 1.246 m² te Brasschaat!

€ 1.395.000
1.246 m²
329 m²

4
2
4
Bloemaard 5, 2930 Brasschaat, België

Eigentijdse villa op ca. 1.246 m² in een fijne woonwijk gelegen te Brasschaat!

Gelegen in de geliefde Bloemaard, een rustige en bijzonder aangename buurt in Brasschaat. Deze straten staan bekend om hun groene omgeving, het veilige karakter en de prettige woonbeleving. Een echte toplocatie waar wonen gelijkstaat aan genieten van rust en comfort, met alle voorzieningen binnen handbereik.

De gelijkvloerse verdieping:
- Een inkomhal op tegelvloer met vestiaire, gastentoilet en handenwasser
- Een woonkamer op tegel met gashaard en aanpalende eetkamer, grote raampartijen met zicht op de tuin en schuifraam naar het terras
- Een leefkeuken met centraal kookeiland, inbouwtoestellen (Pelgrim oven, kookvuur, dampkap, dubbele lavabo, vaatwasser), ontbijthoek met schuifraam naar het terras en overvloedig lichtinval
- Een bijkeuken met aansluiting voor wasapparatuur, lavabo, ingemaakte kasten en deur naar de tuin (tweede ingang)
- Een inpandige garage met dubbele sectionaalpoort, extra aansluitingen voor wasapparatuur, ingemaakte kasten
- Een ondergrondse kelder ideaal als extra bergruimte met toegangsdeur en trap naar de begane grond

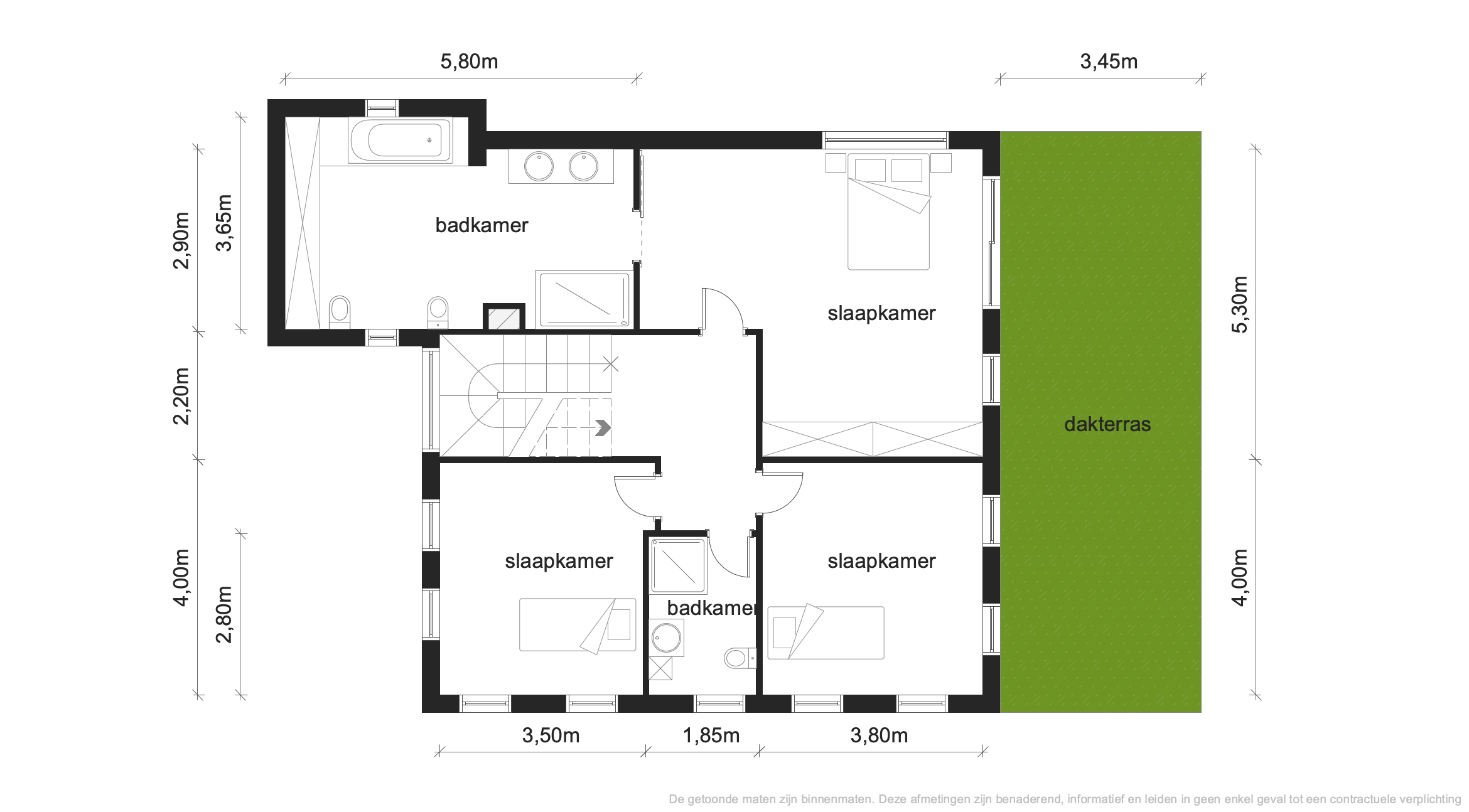
De eerste verdieping:
- Middels glazen trap naar een nachthal op laminaat
- Een hoofdslaapkamer op laminaat, schuifraam naar het dakterras
- Een aanpalende hoofdbadkamer met dubbele lavabo, ligbad, inloopdouche, toilet en bidet
- Een tweede en derde slaapkamer eveneens op laminaat
- Een douchekamer met inloopdouche, lavabo en toilet

De tweede verdieping:
- Polyvalente ruimte op laminaat, momenteel ingericht als fitness
- Berging die fungeert als extra dressing
- Technische ruimte met o.a. de verwarmingsketel (Vaillant)

De tuin:
- Meerdere terrassen
- Een volledig omheinde noordoost georiënteerde tuin met automatische poort
- Vijver
- Fietsen -en en tuinberging
- Sproei-installatie

Algemeen
- Verwarming op gas d.m.v. radiatoren en vloerverwarming
- blanco elektriciteitsattest
- Airconditioning in de hoofdslaapkamer
- Elektrische zonneschermen
- Alarmsysteem aanwezig
- Zonnepanelen aanwezig
- Videofonie
- Vlotte en logische indeling
- Instapklaar, met oog voor degelijk onderhoud
- Meubels zijn ter overname
- Gelegen in één van de rustigste en fijnste residentiële wijken in Brasschaat, in de nabijheid van beschermde natuurgebieden, op fietsafstanden van scholen
- Goede verhouding van het perceel met mooie straatbreedte

  • Referentie nr. 83562 BDF
  • Gevelbreedte 13 m
  • Straatbreedte 24 m
  • Bouwjaar 2010
  • Beschikbaarheid vanaf akte
  • Kadastraal inkomen€ 3.899
  • Garages Ja
  • Garage(s) 2
  • Parkings (binnen) Ja
  • Parkings (buiten) Ja
  • Elektriciteitskeuring beschikbaar ja, conform
  • Verwarming individueel gas
  • EPC 92 kWh/m²
  • EPC label A A
  • Potentieel EPC A A Volgens het EPC kan deze woning naar een A-label gerenoveerd worden.
  • EPC code 3754712
  • Dubbel glas Ja
  • Slaapkamers 4
  • Badkamers 2
  • Terras Ja
  • Kelder Ja
  • Zolder Ja
  • Tuin Ja
  • Stedenbouwkundige info In aanvraag
  • Stedenbouwkundige bestemming woongebied
  • Stedenbouwkundige vergunning Vergunning uitgereikt
  • Dagvaarding en herstelvordering Geen rechterlijke herstelmaatregel of bestuurlijke maatregel opgelegd
  • Voorkooprecht Geen voorkooprecht ruimtelijke ordening aanwezig
  • Verkavelingsvergunning Geen verkavelingsvergunning
  • WORG Nee
  • G-score A
  • P-score A
Eigentijdse villa op ca. 1.246 m² te Brasschaat!
Bekijk alle foto's
(16)


Wonen in
Brasschaat

Wonen in het levendige en groene Brasschaat is een droom. Randje Antwerpen en vlot bereikbaar, leef je in de natuur terwijl een bruisend stadscentrum garant staat voor tal van leuke adresjes en winkelplezier. Brasschaat leeft, dat merk je meteen.

Op zoek naar een makelaar in Brasschaat? Wij staan voor u klaar! Wilt u een woning kopen of verkopen in Brasschaat? Met onze lokale expertise en ervaring in deze groene en rustige regio bieden wij u deskundig advies en begeleiden we u door het volledige proces. Of het nu gaat om de verkoop van een huis, appartement of een exclusief vastgoed, wij zorgen voor een succesvolle transactie in Brasschaat. Wij zijn gespecialiseerd in de verkoop van huizen, villa's en appartementen in Brasschaat. Wilt u de waarde van uw woning weten in deze gewilde regio? Vraag vandaag nog een gratis en vrijblijvende schatting aan en ontdek hoeveel uw eigendom waard is in Brasschaat.

Kaart Streetview

Uw makelaar

Fréderik Verschueren
+32 3 653 01 01

Contacteer ons

De Boer & Partners - Kantoor Brasschaat

Wij schatten de waarde
van uw eigendom

Heeft u plannen om nu, of in de nabije toekomst uw eigendom te verkopen?
Vraag dan nu een gratis en vrijblijvende schatting aan.